Tender

Works Contract for Modular Twin Theatres for Maternity and Associated Services

SOURCEDOGG

This public procurement record has 1 release in its history.

Tender

23 Dec 2016 at 14:18

Summary of the contracting process

The Princess Alexandra Hospital NHS Trust is initiating a tender for a Works Contract to establish Modular Twin Theatres for Maternity and Associated Services, with a total contract value of £650,000. This procurement process is currently in the Tender stage, with submissions due by 6th January 2017. The contract period is set to commence on 16th January 2017 and conclude by 31st March 2017, with delivery expected in Harlow, England.

This tender presents a significant opportunity for contractors specialising in modular construction, particularly small and medium enterprises (SMEs) keen to expand their portfolios in the healthcare sector. Businesses with expertise in constructing modular and portable buildings will find this project well-suited to their capabilities, offering a chance to engage with the NHS and enhance their experience in delivering critical infrastructure within the health services. Interested parties are encouraged to prepare their bids carefully, as timely submission is essential for consideration.

Find more tenders on our Open Data Platform.
How relevant is this notice?

D3 Tenders Premium

Win More Public Sector Contracts

AI-powered tender discovery, pipeline management, and market intelligence — everything you need to grow your public sector business.

Notice Title

Works Contract for Modular Twin Theatres for Maternity and Associated Services

Notice Description

The Princess Alexandra Hospital NHS Trust ('the Authority') wishes to carry out a competition in relation to the Works Contract for Modular Twin/Tandem Maternity Theatre and Associated Services. These modular constructs must be designed, built and ready for clinical use before 31st March 2017. Tenders are invited from contractors specialising in modular build construction. Providers intending to submit a tender are advised to visit the Authority's e-sourcing tool at: https://secure.sourcedogg.com/request/8004#. For technical questions on how to use SourceDogg, please contact SourceDogg directly either: Via email - customerservice@sourcedogg.com via telephone - 0203 481 0904 (UK) via Live Chat - Click the blue button on the right of this page

Publication & Lifecycle

Open Contracting ID
ocds-b5fd17-f565cdd1-10c7-41db-a7e6-2f84ff9c1cfd
Publication Source
Contracts Finder
Latest Notice
https://www.contractsfinder.service.gov.uk/Notice/fde55db7-0d69-407a-a20b-a861353f1aa1
Current Stage
Tender
All Stages
Tender

Procurement Classification

Notice Type
Tender Notice
Procurement Type
Standard
Procurement Category
Not specified
Procurement Method
Not Specified
Procurement Method Details
Not specified
Tender Suitability
SME
Awardee Scale
Not specified

Common Procurement Vocabulary (CPV)

CPV Divisions

44 - Construction structures and materials; auxiliary products to construction (except electric apparatus)


CPV Codes

44211100 - Modular and portable buildings

Notice Value(s)

Tender Value
£650,000 £500K-£1M
Lots Value
Not specified
Awards Value
Not specified
Contracts Value
Not specified

Notice Dates

Publication Date
23 Dec 20169 years ago
Submission Deadline
6 Jan 2017Expired
Future Notice Date
Not specified
Award Date
Not specified
Contract Period
16 Jan 2017 - 31 Mar 2017 1-6 months
Recurrence
Not specified

Notice Status

Tender Status
Active
Lots Status
Not Specified
Awards Status
Not Specified
Contracts Status
Not Specified

Contracting Authority (Buyer)

Main Buyer
SOURCEDOGG
Contact Name
Available with D3 Tenders Premium →
Contact Email
Available with D3 Tenders Premium →
Contact Phone
Available with D3 Tenders Premium →

Buyer Location

Locality
HARLOW
Postcode
CM20 1QX
Post Town
Chelmsford
Country
England

Major Region (ITL 1)
TLH East (England)
Basic Region (ITL 2)
TLH3 Essex
Small Region (ITL 3)
TLH35 West Essex
Delivery Location
Not specified

Local Authority
Harlow
Electoral Ward
Little Parndon & Town Centre
Westminster Constituency
Harlow

Further Information

Notice Documents

Open Contracting Data Standard (OCDS)

View full OCDS Record for this contracting process

Download

The Open Contracting Data Standard (OCDS) is a framework designed to increase transparency and access to public procurement data in the public sector. It is widely used by governments and organisations worldwide to report on procurement processes and contracts.

{
    "tag": [
        "compiled"
    ],
    "id": "ocds-b5fd17-f565cdd1-10c7-41db-a7e6-2f84ff9c1cfd-2016-12-23T14:18:03Z",
    "date": "2016-12-23T14:18:03Z",
    "ocid": "ocds-b5fd17-f565cdd1-10c7-41db-a7e6-2f84ff9c1cfd",
    "language": "en",
    "initiationType": "tender",
    "tender": {
        "id": "8004",
        "title": "Works Contract for Modular Twin Theatres for Maternity and Associated Services",
        "description": "The Princess Alexandra Hospital NHS Trust ('the Authority') wishes to carry out a competition in relation to the Works Contract for Modular Twin/Tandem Maternity Theatre and Associated Services. These modular constructs must be designed, built and ready for clinical use before 31st March 2017. Tenders are invited from contractors specialising in modular build construction. Providers intending to submit a tender are advised to visit the Authority's e-sourcing tool at: https://secure.sourcedogg.com/request/8004#. For technical questions on how to use SourceDogg, please contact SourceDogg directly either: Via email - customerservice@sourcedogg.com via telephone - 0203 481 0904 (UK) via Live Chat - Click the blue button on the right of this page",
        "datePublished": "2016-12-23T14:18:03Z",
        "status": "active",
        "classification": {
            "scheme": "CPV",
            "id": "44211100",
            "description": "Modular and portable buildings"
        },
        "items": [
            {
                "id": "1",
                "deliveryAddresses": [
                    {
                        "postalCode": "CM20 1QX"
                    }
                ]
            }
        ],
        "value": {
            "amount": 650000,
            "currency": "GBP"
        },
        "procurementMethodDetails": "Not specified",
        "tenderPeriod": {
            "endDate": "2017-01-06T23:59:59Z"
        },
        "contractPeriod": {
            "startDate": "2017-01-16T00:00:00Z",
            "endDate": "2017-03-31T23:59:59+01:00"
        },
        "suitability": {
            "sme": true,
            "vcse": false
        },
        "documents": [
            {
                "id": "1",
                "documentType": "tenderNotice",
                "description": "Opportunity notice on Contracts Finder",
                "url": "https://www.contractsfinder.service.gov.uk/Notice/fde55db7-0d69-407a-a20b-a861353f1aa1",
                "datePublished": "2016-12-23T14:18:03Z",
                "format": "text/html",
                "language": "en"
            },
            {
                "id": "2",
                "documentType": "tenderNotice",
                "description": "001 Sections 1-6 Minor Works Building",
                "url": "https://www.contractsfinder.service.gov.uk/Notice/Attachment/c3f9a8a2-5826-458a-bbcf-52c37a0ba1d7",
                "format": "application/pdf"
            },
            {
                "id": "3",
                "documentType": "tenderNotice",
                "description": "002 - Maternity Theatre Scope of Works 191216",
                "url": "https://www.contractsfinder.service.gov.uk/Notice/Attachment/42b1a555-90ee-461a-a7ce-9b9c991718e8",
                "format": "application/vnd.openxmlformats-officedocument.spreadsheetml.sheet"
            },
            {
                "id": "4",
                "documentType": "tenderNotice",
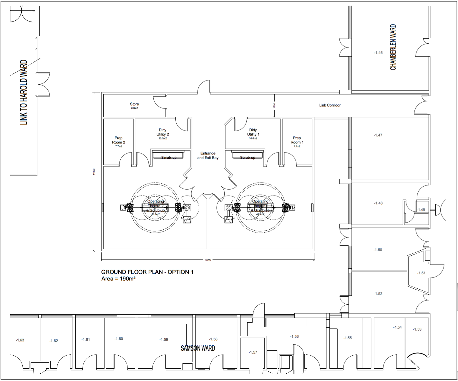
                "description": "003 - Modular Maternity Theatre Layout proposal",
                "url": "https://www.contractsfinder.service.gov.uk/Notice/Attachment/e00c9020-a2d2-440a-9e7f-15488a42a1fb",
                "format": "image/png"
            },
            {
                "id": "5",
                "documentType": "tenderNotice",
                "description": "004 - Contractors guidance, booklet, Appendix",
                "url": "https://www.contractsfinder.service.gov.uk/Notice/Attachment/dc038320-e66d-4828-b939-911fba80b4ab",
                "format": "application/pdf"
            },
            {
                "id": "6",
                "documentType": "tenderNotice",
                "description": "005 - Fire&Safety Policy and Procedures",
                "url": "https://www.contractsfinder.service.gov.uk/Notice/Attachment/2cbe2047-9542-4ef9-8de6-6978c3deecb0",
                "format": "application/pdf"
            },
            {
                "id": "7",
                "documentType": "tenderNotice",
                "description": "006 - Method Statement Review and Approval+Form",
                "url": "https://www.contractsfinder.service.gov.uk/Notice/Attachment/c0876fcb-4cac-4e28-8f95-43ea2a13ad8f",
                "format": "application/pdf"
            },
            {
                "id": "8",
                "documentType": "tenderNotice",
                "description": "007 - Reugulations and Guide Lines Titles",
                "url": "https://www.contractsfinder.service.gov.uk/Notice/Attachment/10f25459-94a1-4623-b7da-f900f52aebe3",
                "format": "application/pdf"
            },
            {
                "id": "9",
                "documentType": "tenderNotice",
                "description": "008 - Safety Procedure For The+H%26S+Requirements+of+Contractors+Undertaking+Work+at+PAH+-+Revised",
                "url": "https://www.contractsfinder.service.gov.uk/Notice/Attachment/d4fc3923-e1e9-4199-a4a7-42cfab8d2375",
                "format": "application/pdf"
            },
            {
                "id": "10",
                "documentType": "tenderNotice",
                "description": "009 - Appendix 3 Site Rules",
                "url": "https://www.contractsfinder.service.gov.uk/Notice/Attachment/a0085727-3152-40ec-8af4-d43b9e080b3b",
                "format": "application/pdf"
            },
            {
                "id": "11",
                "documentType": "tenderNotice",
                "description": "010 Evaluation of tender for the Works Contract for Twin Modular Maternity Theatre and Associated Services",
                "url": "https://www.contractsfinder.service.gov.uk/Notice/Attachment/ec02c6cf-40bd-4f49-945b-b7e74ae80980",
                "format": "application/vnd.openxmlformats-officedocument.wordprocessingml.document"
            },
            {
                "id": "12",
                "documentType": "tenderNotice",
                "description": "Please follow this Link to the Request on SourceDogg in order to apply",
                "url": "https://secure.sourcedogg.com/profile/theprincessalexandrahospital/requests/8004"
            }
        ]
    },
    "parties": [
        {
            "id": "GB-SRS-sid4gov.cabinetoffice.gov.uk/n32d3HmR",
            "name": "Sourcedogg",
            "identifier": {
                "legalName": "Sourcedogg",
                "scheme": "GB-SRS",
                "id": "sid4gov.cabinetoffice.gov.uk/n32d3HmR"
            },
            "address": {
                "streetAddress": "Hamstel Rd",
                "locality": "Harlow",
                "postalCode": "CM20 1QX",
                "countryName": "England"
            },
            "contactPoint": {
                "name": "Clive Austin",
                "email": "Clive.Austin@pah.nhs.uk",
                "telephone": "+44 1279 444455"
            },
            "details": {
                "url": "http://www.pah.nhs.uk/"
            },
            "roles": [
                "buyer"
            ]
        }
    ],
    "buyer": {
        "id": "GB-SRS-sid4gov.cabinetoffice.gov.uk/n32d3HmR",
        "name": "Sourcedogg"
    }
}