Award

Renovation of Pavilion

LITTLE WALTHAM PARISH COUNCIL

This public procurement record has 5 releases in its history.

Award

05 Nov 2024 at 11:45

Award

22 Jul 2024 at 12:42

TenderAmendment

05 Jun 2024 at 11:27

TenderAmendment

30 May 2024 at 19:13

Tender

29 May 2024 at 13:59

Summary of the contracting process

The Little Waltham Parish Council has successfully completed the award stage for the renovation of the Pavilion on Taylors Park, Little Waltham. The procurement process, categorised under "Construction work" (CPV 45000000), involved an open procedure (below threshold) and targeted SMEs. Initial tenders were invited until 16 June 2024 with a contract period from 15 July to 31 October 2024. The awarded contracts encompass building works, asbestos removal, plumbing, decorating, flooring, and electrical works. The main contractors include Simpsons Plumbing & Electrical, G. G. Ford, LAPD Painting & Decorating, CW Flooring, and two larger firms, Michael Steel and Willshire and Son Electrical Contractors. The total value of the awarded contracts stands at £34,000, with work scheduled to commence on 12 August 2024 and complete by 18 November 2024.

This tender provides significant opportunities for businesses specialising in various aspects of construction and renovation to expand their portfolio and gain public sector experience. Companies involved in general building works, plumbing, electrical work, and asbestos removal, particularly SMEs, will find this contract valuable for business growth. The successful completion of this project will enhance community facilities and potentially lead to further local authority work. The Little Waltham Parish Council requires demonstrated capability and appropriate certifications, making it a favourable project for skilled contractors looking to showcase their expertise and reliability in public infrastructure projects.

Find more tenders on our Open Data Platform.
How relevant is this notice?

D3 Tenders Premium

Win More Public Sector Contracts

AI-powered tender discovery, pipeline management, and market intelligence — everything you need to grow your public sector business.

Notice Title

Renovation of Pavilion

Notice Description

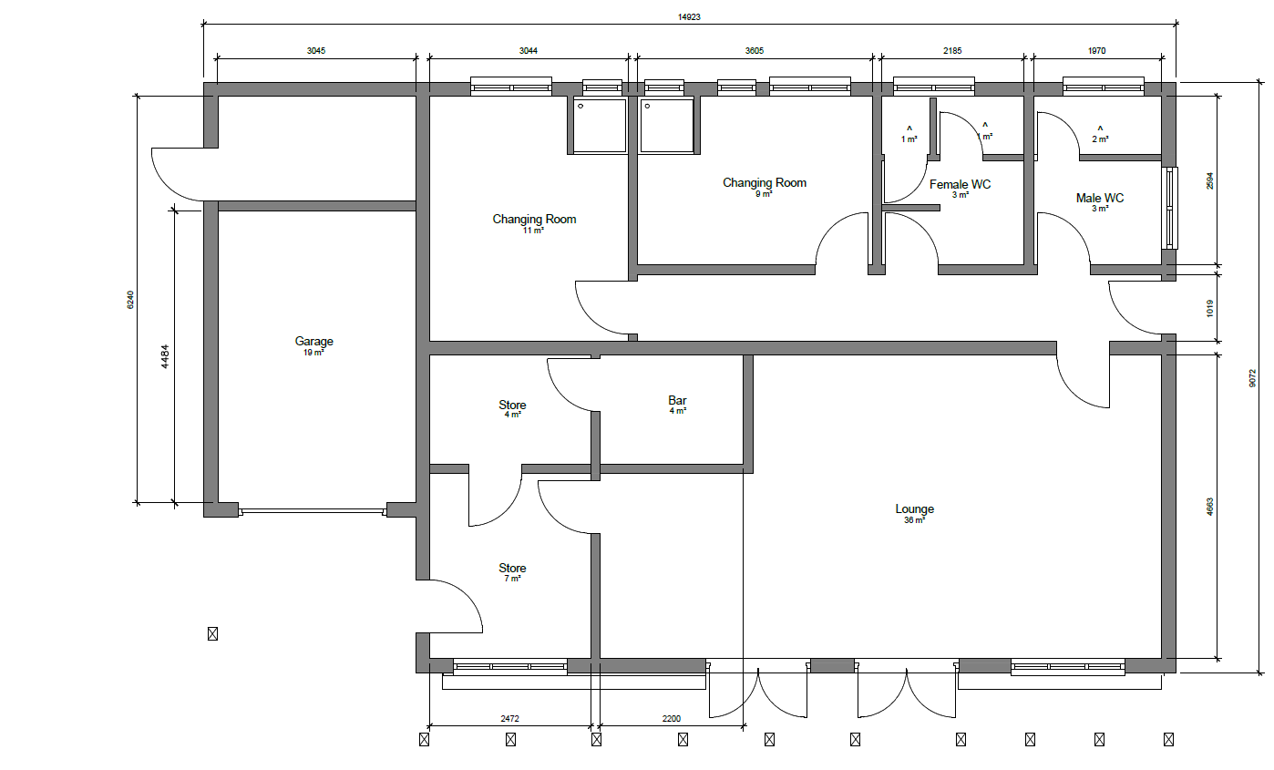
Little Waltham Parish Council are seeking to appoint experienced, skilled and knowledgeable contractor(s) to complete the refurbishment of the Pavilion on Taylors Park, Little Waltham. Little Waltham Cricket Pavilion, Taylors Park, The Street, Little Waltham, CM3 3NY. You must quote for all of the items listed in the specification. The quotation must be valid and open for acceptance by the Council until the expiry of 90 days from the last date for the receipt of quotations. Little Waltham Parish Council is using the governments Contracts Finder, as part of the procurement process. Completed quotations need to be emailed to: clerk@littlewaltham.org.uk Specification To renovate the Pavilion on Taylor's Park, Little Waltham. The Council wishes to bring the Pavilion back to life and to create a hub for the local community. The plans include some building works, removing asbestos, renovating the toilets to make them more accessible for all users, including the required plumbing works, decorating internal and external areas, some plumbing works in the kitchen. Provision of new flooring and electrical works that are required. Details of engineers attending site will be required with evidence of their certification/training to show their capability to carry out the works and safely. Contractors will need to have the correct insurance in place and hold the necessary certifications to carry out the works - evidence will need to be provided. Potential contractors are invited to tender on the information provided. If a site visit is required to gain an understanding of the building, please contact the Clerk to see if this is possible. The Council will consider contractors for elements of the works, or a contractor to undertake all of the works, which includes: * Plumbing * Decorating * Electrical works * Replacing the floor * General building works * Asbestos removal For a contractor who is quoting to undertake the whole project the following will also need to be covered: * To meet all health and safety requirements * A detailed project timeline * Completion of the project within the agreed timeframe * Have the correct licenses for disposal of asbestos Any queries need to be emailed to: clerk@littlewaltham.org.uk in advance of the closing date.

Publication & Lifecycle

Open Contracting ID
ocds-b5fd17-7885b4fc-3fdd-4c1e-bad0-d29c62358977
Publication Source
Contracts Finder
Latest Notice
https://www.contractsfinder.service.gov.uk/Notice/e2c9bbfb-cef2-4d6b-b4ac-3c906e058936
Current Stage
Award
All Stages
Tender, Award

Procurement Classification

Notice Type
Award Notice
Procurement Type
Standard
Procurement Category
Works
Procurement Method
Open
Procurement Method Details
Open procedure (below threshold)
Tender Suitability
SME
Awardee Scale
Large, SME

Common Procurement Vocabulary (CPV)

CPV Divisions

45 - Construction work


CPV Codes

45000000 - Construction work

Notice Value(s)

Tender Value
£30,000 Under £100K
Lots Value
Not specified
Awards Value
£56,784 Under £100K
Contracts Value
Not specified

Notice Dates

Publication Date
5 Nov 20241 years ago
Submission Deadline
16 Jun 2024Expired
Future Notice Date
Not specified
Award Date
21 Jul 20241 years ago
Contract Period
11 Aug 2024 - 18 Nov 2024 1-6 months
Recurrence
Not specified

Notice Status

Tender Status
Complete
Lots Status
Not Specified
Awards Status
Active
Contracts Status
Not Specified

Contracting Authority (Buyer)

Main Buyer
LITTLE WALTHAM PARISH COUNCIL
Contact Name
Available with D3 Tenders Premium →
Contact Email
Available with D3 Tenders Premium →
Contact Phone
Available with D3 Tenders Premium →

Buyer Location

Locality
CHELMSFORD
Postcode
CM1 9PL
Post Town
Chelmsford
Country
England

Major Region (ITL 1)
TLH East (England)
Basic Region (ITL 2)
TLH3 Essex
Small Region (ITL 3)
TLH36 Heart of Essex
Delivery Location
Not specified

Local Authority
Chelmsford
Electoral Ward
Chelmer Village and Beaulieu Park
Westminster Constituency
Chelmsford

Supplier Information

Number of Suppliers
7
Supplier Names

CW FLOORING

G. G. FORD

LAPD PAINTING & DECORATING

MICHAEL STEEL

REDFERNS ELECTRICAL

SIMPSONS PLUMBING & ELECTRICAL

WILLSHIRE AND SON ELECTRICAL CONTRACTORS

Open Contracting Data Standard (OCDS)

View full OCDS Record for this contracting process

Download

The Open Contracting Data Standard (OCDS) is a framework designed to increase transparency and access to public procurement data in the public sector. It is widely used by governments and organisations worldwide to report on procurement processes and contracts.

{
    "tag": [
        "compiled"
    ],
    "id": "ocds-b5fd17-7885b4fc-3fdd-4c1e-bad0-d29c62358977-2024-11-05T11:45:36Z",
    "date": "2024-11-05T11:45:36Z",
    "ocid": "ocds-b5fd17-7885b4fc-3fdd-4c1e-bad0-d29c62358977",
    "language": "en",
    "initiationType": "tender",
    "tender": {
        "id": "LW-PAV2024",
        "title": "Renovation of Pavilion",
        "description": "Little Waltham Parish Council are seeking to appoint experienced, skilled and knowledgeable contractor(s) to complete the refurbishment of the Pavilion on Taylors Park, Little Waltham. Little Waltham Cricket Pavilion, Taylors Park, The Street, Little Waltham, CM3 3NY. You must quote for all of the items listed in the specification. The quotation must be valid and open for acceptance by the Council until the expiry of 90 days from the last date for the receipt of quotations. Little Waltham Parish Council is using the governments Contracts Finder, as part of the procurement process. Completed quotations need to be emailed to: clerk@littlewaltham.org.uk Specification To renovate the Pavilion on Taylor's Park, Little Waltham. The Council wishes to bring the Pavilion back to life and to create a hub for the local community. The plans include some building works, removing asbestos, renovating the toilets to make them more accessible for all users, including the required plumbing works, decorating internal and external areas, some plumbing works in the kitchen. Provision of new flooring and electrical works that are required. Details of engineers attending site will be required with evidence of their certification/training to show their capability to carry out the works and safely. Contractors will need to have the correct insurance in place and hold the necessary certifications to carry out the works - evidence will need to be provided. Potential contractors are invited to tender on the information provided. If a site visit is required to gain an understanding of the building, please contact the Clerk to see if this is possible. The Council will consider contractors for elements of the works, or a contractor to undertake all of the works, which includes: * Plumbing * Decorating * Electrical works * Replacing the floor * General building works * Asbestos removal For a contractor who is quoting to undertake the whole project the following will also need to be covered: * To meet all health and safety requirements * A detailed project timeline * Completion of the project within the agreed timeframe * Have the correct licenses for disposal of asbestos Any queries need to be emailed to: clerk@littlewaltham.org.uk in advance of the closing date.",
        "datePublished": "2024-05-29T14:59:56+01:00",
        "status": "complete",
        "classification": {
            "scheme": "CPV",
            "id": "45000000",
            "description": "Construction work"
        },
        "items": [
            {
                "id": "1",
                "deliveryAddresses": [
                    {
                        "postalCode": "CM3 3NY"
                    },
                    {
                        "postalCode": "CM3 3NY"
                    },
                    {
                        "postalCode": "CM3 3NY"
                    },
                    {
                        "postalCode": "CM3 3NY"
                    },
                    {
                        "postalCode": "CM3 3NY"
                    }
                ]
            }
        ],
        "minValue": {
            "amount": 20000,
            "currency": "GBP"
        },
        "value": {
            "amount": 30000,
            "currency": "GBP"
        },
        "procurementMethod": "open",
        "procurementMethodDetails": "Open procedure (below threshold)",
        "tenderPeriod": {
            "endDate": "2024-06-16T12:00:00+01:00"
        },
        "contractPeriod": {
            "startDate": "2024-07-15T00:00:00+01:00",
            "endDate": "2024-10-31T23:59:59Z"
        },
        "suitability": {
            "sme": true,
            "vcse": false
        },
        "mainProcurementCategory": "works",
        "documents": [
            {
                "id": "1",
                "documentType": "tenderNotice",
                "description": "Opportunity notice on Contracts Finder",
                "url": "https://www.contractsfinder.service.gov.uk/Notice/d56cb7ec-00a0-4c8b-a952-99efb9f355a0",
                "datePublished": "2024-05-29T14:59:56+01:00",
                "format": "text/html",
                "language": "en",
                "dateModified": "2024-06-05T12:27:07+01:00"
            },
            {
                "id": "2",
                "documentType": "technicalSpecifications",
                "url": "https://www.contractsfinder.service.gov.uk/Notice/Attachment/f773bc9d-e13a-4951-b6c9-d28726f795b0",
                "format": "application/vnd.openxmlformats-officedocument.wordprocessingml.document"
            },
            {
                "id": "3",
                "documentType": "projectPlan",
                "url": "https://www.contractsfinder.service.gov.uk/Notice/Attachment/5c4c0cc1-9426-419e-95a5-40e77a44ba38",
                "format": "image/png"
            },
            {
                "id": "4",
                "documentType": "technicalSpecifications",
                "url": "https://www.contractsfinder.service.gov.uk/Notice/Attachment/ee5d7b53-8969-4117-a50c-99bb821edc99",
                "format": "application/vnd.openxmlformats-officedocument.wordprocessingml.document"
            },
            {
                "id": "5",
                "documentType": "technicalSpecifications",
                "url": "https://www.contractsfinder.service.gov.uk/Notice/Attachment/1ddfda62-4573-4cf7-a0bb-7408a9592467",
                "format": "application/vnd.openxmlformats-officedocument.wordprocessingml.document"
            }
        ]
    },
    "parties": [
        {
            "id": "GB-SRS-supplierregistration.cabinetoffice.gov.uk/Zt9Kbr4y",
            "name": "Little Waltham Parish Council",
            "identifier": {
                "legalName": "Little Waltham Parish Council",
                "scheme": "GB-SRS",
                "id": "supplierregistration.cabinetoffice.gov.uk/Zt9Kbr4y"
            },
            "address": {
                "streetAddress": "PO Box 13516",
                "locality": "Chelmsford",
                "postalCode": "CM1 9PL",
                "countryName": "England"
            },
            "contactPoint": {
                "name": "Michelle Harrison",
                "email": "clerk@littlewaltham.org.uk"
            },
            "details": {
                "url": "http://www.littlewaltham.org.uk"
            },
            "roles": [
                "buyer"
            ]
        },
        {
            "id": "GB-COH-04710278",
            "name": "Simpsons Plumbing & Electrical",
            "identifier": {
                "legalName": "Simpsons Plumbing & Electrical",
                "scheme": "GB-COH",
                "id": "04710278"
            },
            "address": {
                "streetAddress": "98 Vicarage Lane, Great Baddow, Chelmsford, CM2 8JB"
            },
            "details": {
                "scale": "sme",
                "vcse": false
            },
            "roles": [
                "supplier"
            ]
        },
        {
            "id": "GB-CFS-289465",
            "name": "G. G. Ford",
            "identifier": {
                "legalName": "G. G. Ford"
            },
            "address": {
                "streetAddress": "38 Whitehouse Crescent, Great Baddow, Chelmsford, CM2 7LW"
            },
            "details": {
                "scale": "sme",
                "vcse": false
            },
            "roles": [
                "supplier"
            ]
        },
        {
            "id": "GB-CFS-289466",
            "name": "LAPD Painting & Decorating",
            "identifier": {
                "legalName": "LAPD Painting & Decorating"
            },
            "address": {
                "streetAddress": "33 Rectory Road, Writtle, CM1 3HL"
            },
            "details": {
                "scale": "sme",
                "vcse": false
            },
            "roles": [
                "supplier"
            ]
        },
        {
            "id": "GB-CFS-289467",
            "name": "CW Flooring",
            "identifier": {
                "legalName": "CW Flooring"
            },
            "address": {
                "streetAddress": "6 Sneezum Walk WITHAM CM8 1US"
            },
            "details": {
                "scale": "sme",
                "vcse": false
            },
            "roles": [
                "supplier"
            ]
        },
        {
            "id": "GB-CFS-289468",
            "name": "Redferns Electrical Limited",
            "identifier": {
                "legalName": "Redferns Electrical Limited"
            },
            "address": {
                "streetAddress": "Milch Hill House, Main Road, Willows Green, Chelmsford, CM3 1QE"
            },
            "details": {
                "scale": "sme",
                "vcse": false
            },
            "roles": [
                "supplier"
            ]
        },
        {
            "id": "GB-CFS-300421",
            "name": "Michael Steel",
            "identifier": {
                "legalName": "Michael Steel"
            },
            "address": {
                "streetAddress": "6 Primrose Hill, Chelmsford, CM1 2RQ"
            },
            "details": {
                "scale": "large",
                "vcse": false
            },
            "roles": [
                "supplier"
            ]
        },
        {
            "id": "GB-CFS-300422",
            "name": "Willshire and Son Electrical Contractors",
            "identifier": {
                "legalName": "Willshire and Son Electrical Contractors"
            },
            "address": {
                "streetAddress": "6 Duffries Close Great Waltham Essex CM3 1DQ"
            },
            "details": {
                "scale": "large",
                "vcse": false
            },
            "roles": [
                "supplier"
            ]
        }
    ],
    "buyer": {
        "id": "GB-SRS-supplierregistration.cabinetoffice.gov.uk/Zt9Kbr4y",
        "name": "Little Waltham Parish Council"
    },
    "awards": [
        {
            "id": "ocds-b5fd17-7885b4fc-3fdd-4c1e-bad0-d29c62358977-1",
            "status": "active",
            "date": "2024-07-22T00:00:00+01:00",
            "datePublished": "2024-07-22T13:42:01+01:00",
            "value": {
                "amount": 22784.77,
                "currency": "GBP"
            },
            "suppliers": [
                {
                    "id": "GB-COH-04710278",
                    "name": "Simpsons Plumbing & Electrical"
                },
                {
                    "id": "GB-CFS-289465",
                    "name": "G. G. Ford"
                },
                {
                    "id": "GB-CFS-289466",
                    "name": "LAPD Painting & Decorating"
                },
                {
                    "id": "GB-CFS-289467",
                    "name": "CW Flooring"
                },
                {
                    "id": "GB-CFS-289468",
                    "name": "Redferns Electrical Limited"
                }
            ],
            "contractPeriod": {
                "startDate": "2024-08-12T00:00:00+01:00",
                "endDate": "2024-11-18T23:59:59Z"
            },
            "documents": [
                {
                    "id": "1",
                    "documentType": "awardNotice",
                    "description": "Awarded contract notice on Contracts Finder",
                    "url": "https://www.contractsfinder.service.gov.uk/Notice/0b023daf-5d1b-49d0-8897-d638dba1e28e",
                    "datePublished": "2024-07-22T13:42:01+01:00",
                    "format": "text/html",
                    "language": "en"
                },
                {
                    "id": "2",
                    "documentType": "projectPlan",
                    "url": "https://www.contractsfinder.service.gov.uk/Notice/Attachment/5c4c0cc1-9426-419e-95a5-40e77a44ba38",
                    "format": "image/png"
                },
                {
                    "id": "3",
                    "documentType": "technicalSpecifications",
                    "url": "https://www.contractsfinder.service.gov.uk/Notice/Attachment/1ddfda62-4573-4cf7-a0bb-7408a9592467",
                    "format": "application/vnd.openxmlformats-officedocument.wordprocessingml.document"
                }
            ]
        },
        {
            "id": "ocds-b5fd17-7885b4fc-3fdd-4c1e-bad0-d29c62358977-2",
            "status": "active",
            "date": "2024-07-22T00:00:00+01:00",
            "datePublished": "2024-11-05T11:45:35Z",
            "value": {
                "amount": 34000,
                "currency": "GBP"
            },
            "suppliers": [
                {
                    "id": "GB-COH-04710278",
                    "name": "Simpsons Plumbing & Electrical"
                },
                {
                    "id": "GB-CFS-289465",
                    "name": "G. G. Ford"
                },
                {
                    "id": "GB-CFS-289466",
                    "name": "LAPD Painting & Decorating"
                },
                {
                    "id": "GB-CFS-289467",
                    "name": "CW Flooring"
                },
                {
                    "id": "GB-CFS-300421",
                    "name": "Michael Steel"
                },
                {
                    "id": "GB-CFS-300422",
                    "name": "Willshire and Son Electrical Contractors"
                }
            ],
            "contractPeriod": {
                "startDate": "2024-08-12T00:00:00+01:00",
                "endDate": "2024-11-18T23:59:59Z"
            },
            "description": "Michael Steel: Awarded 08/10/24 Willshire and Son Electrical Contractors: Awarded 08/10/24",
            "documents": [
                {
                    "id": "4",
                    "documentType": "awardNotice",
                    "description": "Awarded contract notice on Contracts Finder",
                    "url": "https://www.contractsfinder.service.gov.uk/Notice/e2c9bbfb-cef2-4d6b-b4ac-3c906e058936",
                    "datePublished": "2024-11-05T11:45:35Z",
                    "format": "text/html",
                    "language": "en"
                },
                {
                    "id": "2",
                    "documentType": "projectPlan",
                    "url": "https://www.contractsfinder.service.gov.uk/Notice/Attachment/5c4c0cc1-9426-419e-95a5-40e77a44ba38",
                    "format": "image/png"
                },
                {
                    "id": "3",
                    "documentType": "technicalSpecifications",
                    "url": "https://www.contractsfinder.service.gov.uk/Notice/Attachment/1ddfda62-4573-4cf7-a0bb-7408a9592467",
                    "format": "application/vnd.openxmlformats-officedocument.wordprocessingml.document"
                }
            ]
        }
    ]
}