Tender

Old School Restoration - high level works

MARKET LAVINGTON PARISH COUNCIL

This public procurement record has 1 release in its history.

Tender

28 Aug 2017 at 11:03

Summary of the contracting process

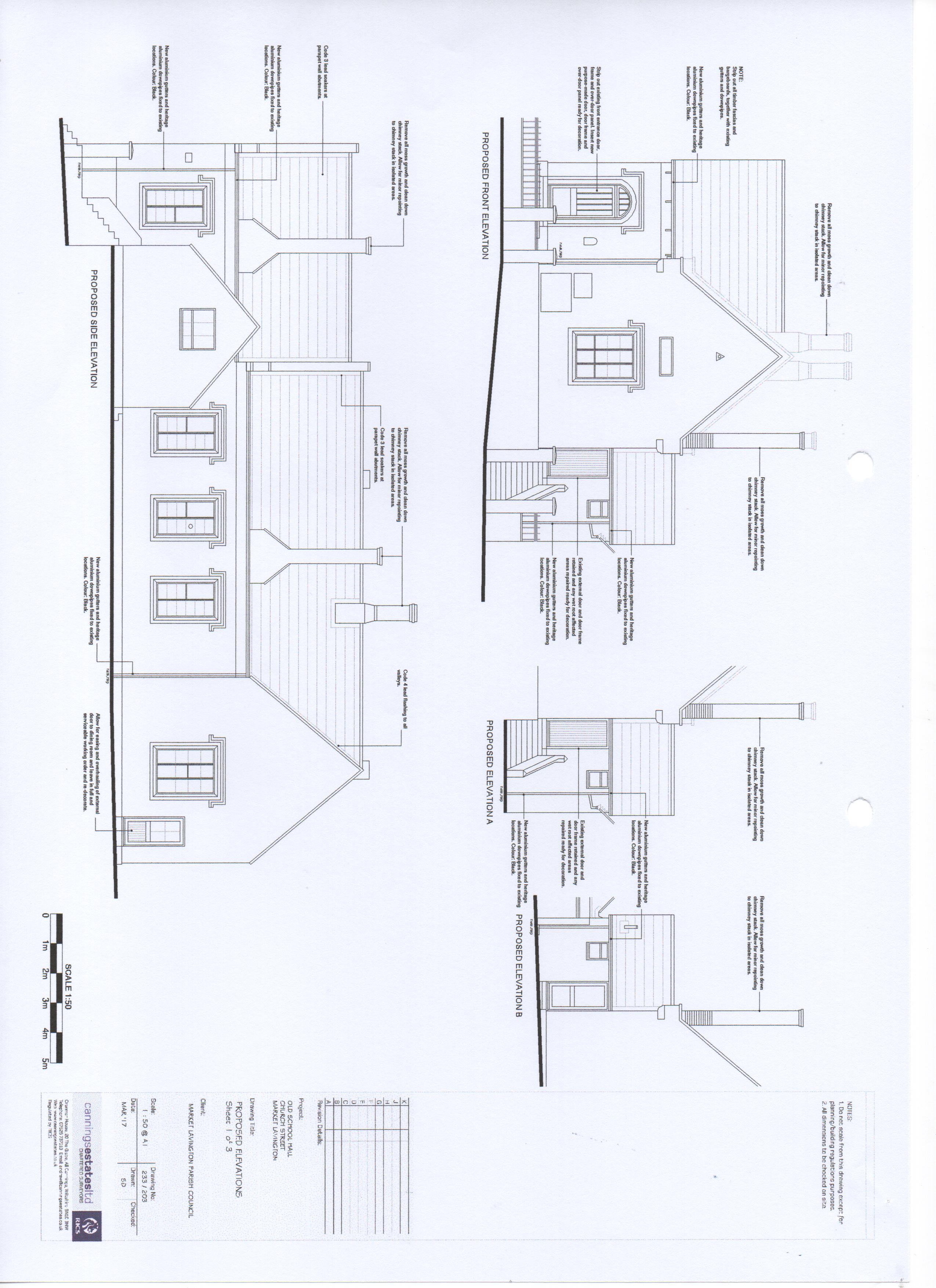
The Market Lavington Parish Council is inviting tenders for the "Old School Restoration - high level works" project, which involves external restoration of a grade 2 listed building located in the Market Lavington conservation area. This procurement falls under the construction work category and is currently in the active tender stage, with submissions due by 19 September 2017. The contract value is set at £45,000 and is expected to commence from 1 March 2018, concluding on 30 April 2018.

This tender presents a valuable opportunity for businesses specialising in construction and restoration, particularly those with experience in working on listed buildings. Companies that can offer high-quality craftsmanship and are knowledgeable about conservation guidelines will be well-suited to apply. The scope for growth is significant, as winning this contract could lead to further opportunities within the local government sector and enhance a business's portfolio in heritage restoration projects.

Find more tenders on our Open Data Platform.
How relevant is this notice?

D3 Tenders Premium

Win More Public Sector Contracts

AI-powered tender discovery, pipeline management, and market intelligence — everything you need to grow your public sector business.

Notice Title

Old School Restoration - high level works

Notice Description

Market Lavington Parish Council are seeking tenders for high-level works to restore externally the Old School, a grade 2 listed building located in the Market Lavington conservation area. This contract supersedes the previous notice posted - having additional drawings, and a revised timescale for the works.

Publication & Lifecycle

Open Contracting ID
ocds-b5fd17-0ffb9bc9-3051-4caa-9694-45f43053aa77
Publication Source
Contracts Finder
Latest Notice
https://www.contractsfinder.service.gov.uk/Notice/92db5ccd-e405-4f42-858a-cdfed8b3f275
Current Stage
Tender
All Stages
Tender

Procurement Classification

Notice Type
Tender Notice
Procurement Type
Standard
Procurement Category
Works
Procurement Method
Not Specified
Procurement Method Details
Not specified
Tender Suitability
Not specified
Awardee Scale
Not specified

Common Procurement Vocabulary (CPV)

CPV Divisions

45 - Construction work


CPV Codes

45000000 - Construction work

Notice Value(s)

Tender Value
£45,000 Under £100K
Lots Value
Not specified
Awards Value
Not specified
Contracts Value
Not specified

Notice Dates

Publication Date
28 Aug 20178 years ago
Submission Deadline
19 Sep 2017Expired
Future Notice Date
Not specified
Award Date
Not specified
Contract Period
1 Mar 2018 - 30 Apr 2018 1-6 months
Recurrence
Not specified

Notice Status

Tender Status
Active
Lots Status
Not Specified
Awards Status
Not Specified
Contracts Status
Not Specified

Contracting Authority (Buyer)

Main Buyer
MARKET LAVINGTON PARISH COUNCIL
Contact Name
Available with D3 Tenders Premium →
Contact Email
Available with D3 Tenders Premium →
Contact Phone
Available with D3 Tenders Premium →

Buyer Location

Locality
ALL CANNINGS
Postcode
SN10 3NW
Post Town
Swindon
Country
England

Major Region (ITL 1)
TLK South West (England)
Basic Region (ITL 2)
TLK7 Gloucestershire and Wiltshire
Small Region (ITL 3)
TLK72 Wiltshire
Delivery Location
Not specified

Local Authority
Wiltshire
Electoral Ward
Pewsey Vale West
Westminster Constituency
East Wiltshire

Further Information

Notice Documents

Open Contracting Data Standard (OCDS)

View full OCDS Record for this contracting process

Download

The Open Contracting Data Standard (OCDS) is a framework designed to increase transparency and access to public procurement data in the public sector. It is widely used by governments and organisations worldwide to report on procurement processes and contracts.

{
    "tag": [
        "compiled"
    ],
    "id": "ocds-b5fd17-0ffb9bc9-3051-4caa-9694-45f43053aa77-2017-08-28T12:03:43+01:00",
    "date": "2017-08-28T12:03:43+01:00",
    "ocid": "ocds-b5fd17-0ffb9bc9-3051-4caa-9694-45f43053aa77",
    "language": "en",
    "initiationType": "tender",
    "tender": {
        "id": "Market Lavington Parish Council (2)",
        "title": "Old School Restoration - high level works",
        "description": "Market Lavington Parish Council are seeking tenders for high-level works to restore externally the Old School, a grade 2 listed building located in the Market Lavington conservation area. This contract supersedes the previous notice posted - having additional drawings, and a revised timescale for the works.",
        "datePublished": "2017-08-28T12:03:43+01:00",
        "status": "active",
        "classification": {
            "scheme": "CPV",
            "id": "45000000",
            "description": "Construction work"
        },
        "items": [
            {
                "id": "1",
                "deliveryAddresses": [
                    {
                        "postalCode": "SN10 4DT"
                    }
                ]
            }
        ],
        "value": {
            "amount": 45000,
            "currency": "GBP"
        },
        "procurementMethodDetails": "Not specified",
        "tenderPeriod": {
            "endDate": "2017-09-19T23:59:59+01:00"
        },
        "contractPeriod": {
            "startDate": "2018-03-01T00:00:00Z",
            "endDate": "2018-04-30T23:59:59+01:00"
        },
        "suitability": {
            "sme": false,
            "vcse": false
        },
        "mainProcurementCategory": "works",
        "documents": [
            {
                "id": "1",
                "documentType": "tenderNotice",
                "description": "Opportunity notice on Contracts Finder",
                "url": "https://www.contractsfinder.service.gov.uk/Notice/92db5ccd-e405-4f42-858a-cdfed8b3f275",
                "datePublished": "2017-08-28T12:03:43+01:00",
                "format": "text/html",
                "language": "en"
            },
            {
                "id": "2",
                "documentType": "tenderNotice",
                "description": "cover note",
                "url": "https://www.contractsfinder.service.gov.uk/Notice/Attachment/04c5543d-85cd-4853-8ee2-8538aedcaf00",
                "format": "application/vnd.openxmlformats-officedocument.wordprocessingml.document"
            },
            {
                "id": "3",
                "documentType": "technicalSpecifications",
                "description": "form of tender",
                "url": "https://www.contractsfinder.service.gov.uk/Notice/Attachment/451def63-cb9d-411f-a46b-95fd77fdcdba",
                "format": "application/vnd.openxmlformats-officedocument.wordprocessingml.document"
            },
            {
                "id": "4",
                "documentType": "technicalSpecifications",
                "description": "specification preliminaries",
                "url": "https://www.contractsfinder.service.gov.uk/Notice/Attachment/0d4fcfb4-be8b-472d-8e2b-86de0044c0f4",
                "format": "application/vnd.openxmlformats-officedocument.wordprocessingml.document"
            },
            {
                "id": "5",
                "documentType": "technicalSpecifications",
                "description": "specification preambles",
                "url": "https://www.contractsfinder.service.gov.uk/Notice/Attachment/db903368-f94a-409b-89cc-5f50a3359470",
                "format": "application/vnd.openxmlformats-officedocument.wordprocessingml.document"
            },
            {
                "id": "6",
                "documentType": "technicalSpecifications",
                "description": "specification the works section",
                "url": "https://www.contractsfinder.service.gov.uk/Notice/Attachment/1c315d06-efdf-47bb-8781-2b8638020d7e",
                "format": "application/vnd.openxmlformats-officedocument.wordprocessingml.document"
            },
            {
                "id": "7",
                "documentType": "technicalSpecifications",
                "description": "site location plan - dwg. 100",
                "url": "https://www.contractsfinder.service.gov.uk/Notice/Attachment/f9fcb6e7-3bda-417a-84af-a6eeb2761306",
                "format": "image/jpeg"
            },
            {
                "id": "8",
                "documentType": "technicalSpecifications",
                "description": "existing site plan - dwg. 102A",
                "url": "https://www.contractsfinder.service.gov.uk/Notice/Attachment/159f0a4d-f662-49fc-8422-6f05783e31a1",
                "format": "image/jpeg"
            },
            {
                "id": "9",
                "documentType": "technicalSpecifications",
                "description": "existing ground floor plan - dwg. 101C",
                "url": "https://www.contractsfinder.service.gov.uk/Notice/Attachment/59a78548-662c-4c43-a857-f05762a3c88b",
                "format": "image/jpeg"
            },
            {
                "id": "10",
                "documentType": "technicalSpecifications",
                "description": "existing roof plan - dwg. 151",
                "url": "https://www.contractsfinder.service.gov.uk/Notice/Attachment/0dd19112-4e4f-43e1-b377-983d0d4614c2",
                "format": "image/jpeg"
            },
            {
                "id": "11",
                "documentType": "technicalSpecifications",
                "description": "proposed roof plan - dwg. 202",
                "url": "https://www.contractsfinder.service.gov.uk/Notice/Attachment/c96f456e-ba20-4ebc-b029-bc6c979c5313",
                "format": "image/jpeg"
            },
            {
                "id": "12",
                "documentType": "technicalSpecifications",
                "description": "proposed elevations 1 of 3 - dwg. 203",
                "url": "https://www.contractsfinder.service.gov.uk/Notice/Attachment/8ddddbe2-48b1-4b36-8a6b-a3c1767998f3",
                "format": "image/jpeg"
            },
            {
                "id": "13",
                "documentType": "technicalSpecifications",
                "description": "proposed elevations 2 of 3 - dwg. 204",
                "url": "https://www.contractsfinder.service.gov.uk/Notice/Attachment/4b14c766-ed7a-4e11-b552-cf4d09027ad9",
                "format": "image/jpeg"
            },
            {
                "id": "14",
                "documentType": "technicalSpecifications",
                "description": "proposed sections - dwg. 206",
                "url": "https://www.contractsfinder.service.gov.uk/Notice/Attachment/7bfb258b-9bd4-4e8c-bbe0-a99170f98d35",
                "format": "image/jpeg"
            }
        ]
    },
    "parties": [
        {
            "id": "GB-SRS-sid4gov.cabinetoffice.gov.uk/82Aa2WfS",
            "name": "Market Lavington Parish Council",
            "identifier": {
                "legalName": "Market Lavington Parish Council",
                "scheme": "GB-SRS",
                "id": "sid4gov.cabinetoffice.gov.uk/82Aa2WfS"
            },
            "address": {
                "streetAddress": "20 The Glebe",
                "locality": "All Cannings",
                "postalCode": "SN10 3NW",
                "countryName": "England"
            },
            "contactPoint": {
                "name": "Andrew Simpson",
                "email": "andrew@canningsestates.co.uk"
            },
            "roles": [
                "buyer"
            ]
        }
    ],
    "buyer": {
        "id": "GB-SRS-sid4gov.cabinetoffice.gov.uk/82Aa2WfS",
        "name": "Market Lavington Parish Council"
    }
}