Tender

Old School Restoration - low level works

MARKET LAVINGTON PARISH COUNCIL

This public procurement record has 1 release in its history.

Tender

28 Aug 2017 at 08:23

Summary of the contracting process

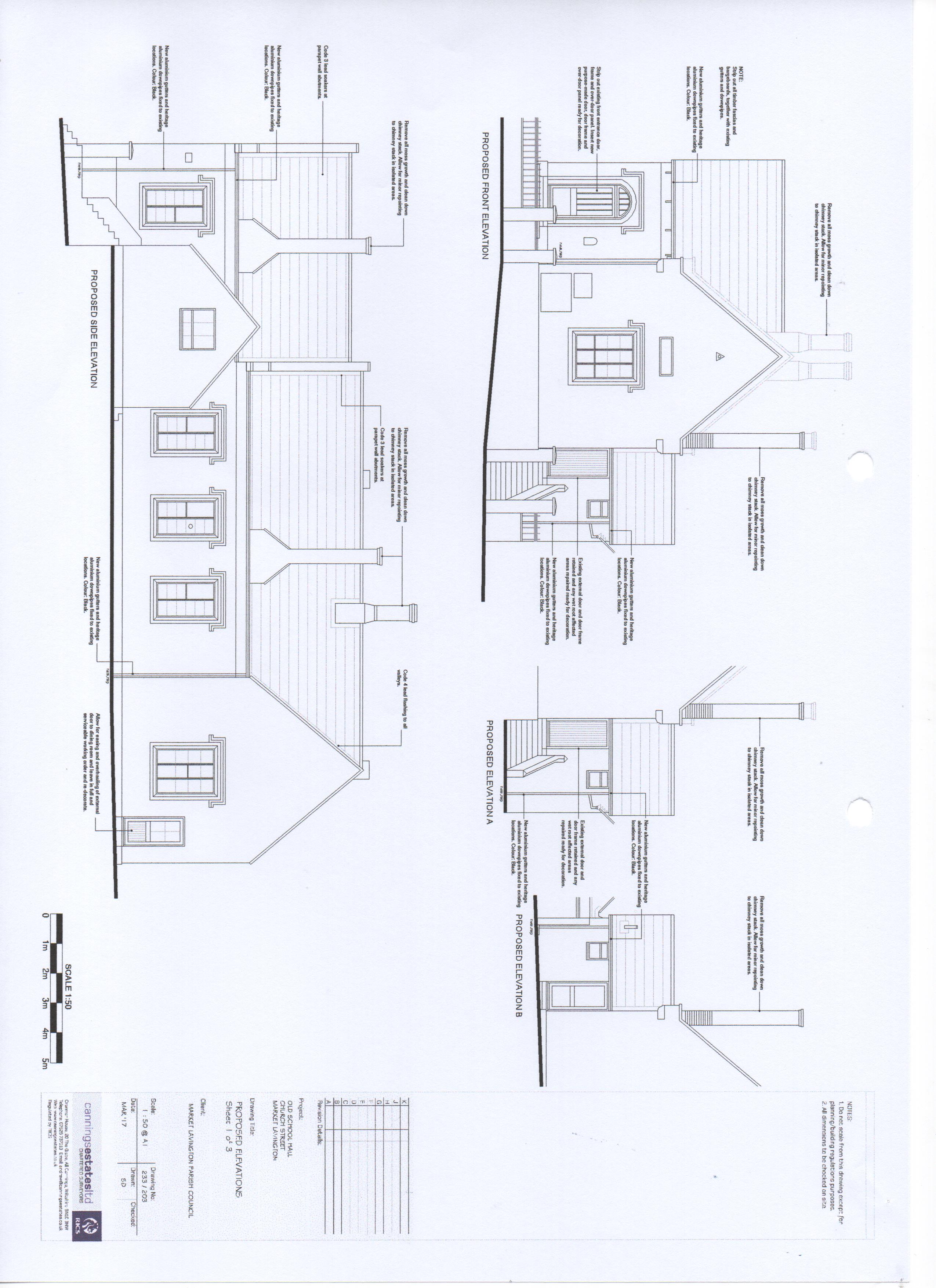
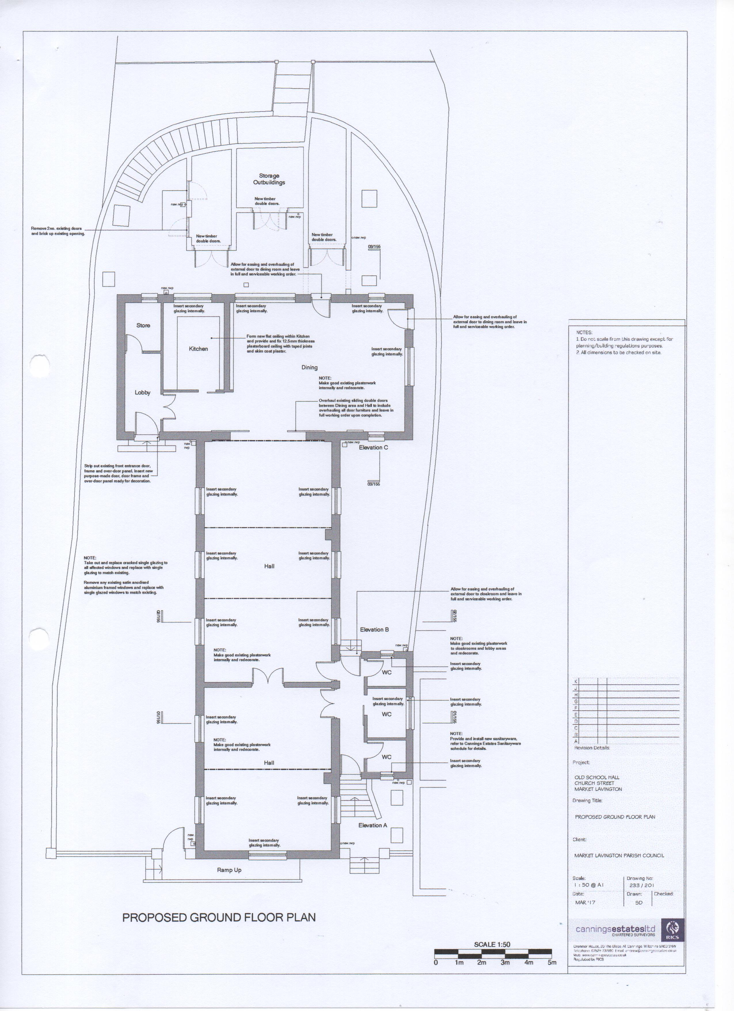
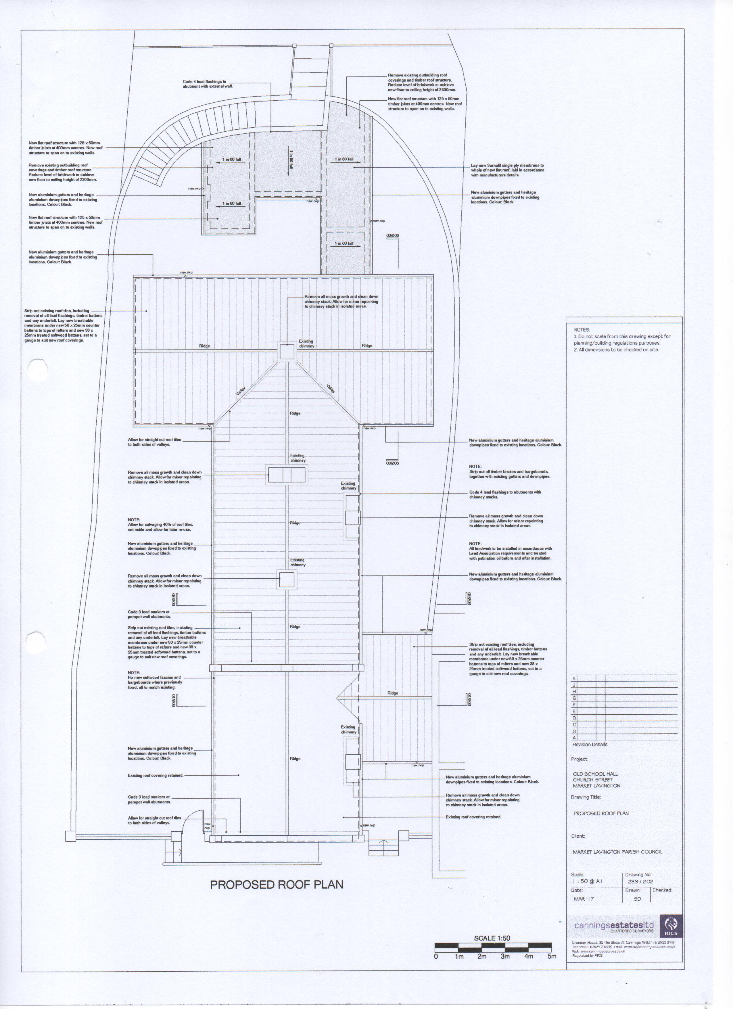
Market Lavington Parish Council is currently inviting tenders for the "Old School Restoration - low level works" project, aimed at restoring the Old School Hall, a grade II listed building located in the Market Lavington conservation area. The total budget for this construction work is £140,000. The tender period is active and will close on 19th September 2017, with the contract expected to commence on 1st May 2018 and conclude by 30th June 2018.

This procurement presents a valuable opportunity for construction firms with expertise in heritage restoration and external and internal renovation works. Small and medium-sized enterprises (SMEs), especially those experienced in working with listed buildings, would be well-suited to compete for this contract. Engaging with this tender can potentially lead to further projects within the local authority, contributing to business growth in the region.

Find more tenders on our Open Data Platform.
How relevant is this notice?

D3 Tenders Premium

Win More Public Sector Contracts

AI-powered tender discovery, pipeline management, and market intelligence — everything you need to grow your public sector business.

Notice Title

Old School Restoration - low level works

Notice Description

Market Lavington Parish Council are seeking tenders for low-level works to restore externally and internally the Old School Hall, a grade 2 listed building located in the Market Lavington conservation area.

Publication & Lifecycle

Open Contracting ID
ocds-b5fd17-f3518f2f-5204-448b-8e99-1e7beb19b984
Publication Source
Contracts Finder
Latest Notice
https://www.contractsfinder.service.gov.uk/Notice/cc0b3c50-2f8e-48d6-829c-54f3df7b5f56
Current Stage
Tender
All Stages
Tender

Procurement Classification

Notice Type
Tender Notice
Procurement Type
Standard
Procurement Category
Works
Procurement Method
Not Specified
Procurement Method Details
Not specified
Tender Suitability
Not specified
Awardee Scale
Not specified

Common Procurement Vocabulary (CPV)

CPV Divisions

45 - Construction work


CPV Codes

45000000 - Construction work

Notice Value(s)

Tender Value
£140,000 £100K-£500K
Lots Value
Not specified
Awards Value
Not specified
Contracts Value
Not specified

Notice Dates

Publication Date
28 Aug 20178 years ago
Submission Deadline
19 Sep 2017Expired
Future Notice Date
Not specified
Award Date
Not specified
Contract Period
30 Apr 2018 - 30 Jun 2018 1-6 months
Recurrence
Not specified

Notice Status

Tender Status
Active
Lots Status
Not Specified
Awards Status
Not Specified
Contracts Status
Not Specified

Contracting Authority (Buyer)

Main Buyer
MARKET LAVINGTON PARISH COUNCIL
Contact Name
Available with D3 Tenders Premium →
Contact Email
Available with D3 Tenders Premium →
Contact Phone
Available with D3 Tenders Premium →

Buyer Location

Locality
ALL CANNINGS
Postcode
SN10 3NW
Post Town
Swindon
Country
England

Major Region (ITL 1)
TLK South West (England)
Basic Region (ITL 2)
TLK7 Gloucestershire and Wiltshire
Small Region (ITL 3)
TLK72 Wiltshire
Delivery Location
Not specified

Local Authority
Wiltshire
Electoral Ward
Pewsey Vale West
Westminster Constituency
East Wiltshire

Further Information

Notice Documents

Open Contracting Data Standard (OCDS)

View full OCDS Record for this contracting process

Download

The Open Contracting Data Standard (OCDS) is a framework designed to increase transparency and access to public procurement data in the public sector. It is widely used by governments and organisations worldwide to report on procurement processes and contracts.

{
    "tag": [
        "compiled"
    ],
    "id": "ocds-b5fd17-f3518f2f-5204-448b-8e99-1e7beb19b984-2017-08-28T09:23:20+01:00",
    "date": "2017-08-28T09:23:20+01:00",
    "ocid": "ocds-b5fd17-f3518f2f-5204-448b-8e99-1e7beb19b984",
    "language": "en",
    "initiationType": "tender",
    "tender": {
        "id": "Market Lavington Parish Council",
        "title": "Old School Restoration - low level works",
        "description": "Market Lavington Parish Council are seeking tenders for low-level works to restore externally and internally the Old School Hall, a grade 2 listed building located in the Market Lavington conservation area.",
        "datePublished": "2017-08-28T09:23:20+01:00",
        "status": "active",
        "classification": {
            "scheme": "CPV",
            "id": "45000000",
            "description": "Construction work"
        },
        "items": [
            {
                "id": "1",
                "deliveryAddresses": [
                    {
                        "postalCode": "SN10 4DT"
                    }
                ]
            }
        ],
        "value": {
            "amount": 140000,
            "currency": "GBP"
        },
        "procurementMethodDetails": "Not specified",
        "tenderPeriod": {
            "endDate": "2017-09-19T23:59:59+01:00"
        },
        "contractPeriod": {
            "startDate": "2018-05-01T00:00:00+01:00",
            "endDate": "2018-06-30T23:59:59+01:00"
        },
        "suitability": {
            "sme": false,
            "vcse": false
        },
        "mainProcurementCategory": "works",
        "documents": [
            {
                "id": "1",
                "documentType": "tenderNotice",
                "description": "Opportunity notice on Contracts Finder",
                "url": "https://www.contractsfinder.service.gov.uk/Notice/cc0b3c50-2f8e-48d6-829c-54f3df7b5f56",
                "datePublished": "2017-08-28T09:23:20+01:00",
                "format": "text/html",
                "language": "en"
            },
            {
                "id": "2",
                "documentType": "tenderNotice",
                "description": "cover note",
                "url": "https://www.contractsfinder.service.gov.uk/Notice/Attachment/c27d241d-6520-4606-bb35-0530d97fa749",
                "format": "application/vnd.openxmlformats-officedocument.wordprocessingml.document"
            },
            {
                "id": "3",
                "documentType": "tenderNotice",
                "description": "form of tender",
                "url": "https://www.contractsfinder.service.gov.uk/Notice/Attachment/b1825bae-cc15-41c0-8df0-148be0fa7c4c",
                "format": "application/vnd.openxmlformats-officedocument.wordprocessingml.document"
            },
            {
                "id": "4",
                "documentType": "technicalSpecifications",
                "description": "specification preliminaries",
                "url": "https://www.contractsfinder.service.gov.uk/Notice/Attachment/63f81e84-bc1c-40eb-9007-ed6ba91888d2",
                "format": "application/vnd.openxmlformats-officedocument.wordprocessingml.document"
            },
            {
                "id": "5",
                "documentType": "technicalSpecifications",
                "description": "specification preambles",
                "url": "https://www.contractsfinder.service.gov.uk/Notice/Attachment/19c300d7-6806-410d-8326-b147f0c4d51e",
                "format": "application/vnd.openxmlformats-officedocument.wordprocessingml.document"
            },
            {
                "id": "6",
                "documentType": "technicalSpecifications",
                "description": "specification the works section",
                "url": "https://www.contractsfinder.service.gov.uk/Notice/Attachment/c55bf21d-005e-405e-86b2-765fbdcfcd5e",
                "format": "application/vnd.openxmlformats-officedocument.wordprocessingml.document"
            },
            {
                "id": "7",
                "documentType": "technicalSpecifications",
                "description": "site location plan dwg. 100",
                "url": "https://www.contractsfinder.service.gov.uk/Notice/Attachment/58f63848-6e33-4994-a2a1-19792d606692",
                "format": "image/jpeg"
            },
            {
                "id": "8",
                "documentType": "technicalSpecifications",
                "description": "existing ground floor plan dwg. 101C",
                "url": "https://www.contractsfinder.service.gov.uk/Notice/Attachment/0ea66644-4ce2-4e42-9f5a-68a7ea064870",
                "format": "image/jpeg"
            },
            {
                "id": "9",
                "documentType": "technicalSpecifications",
                "description": "existing site plan dwg. 102A",
                "url": "https://www.contractsfinder.service.gov.uk/Notice/Attachment/8bdf78e5-7a2d-46cd-a3f8-c43ac5004ed8",
                "format": "image/jpeg"
            },
            {
                "id": "10",
                "documentType": "technicalSpecifications",
                "description": "existing 3 of 3 dwg. 154",
                "url": "https://www.contractsfinder.service.gov.uk/Notice/Attachment/042b5ac6-a7c3-4609-ad5f-ef940d1ce6e6",
                "format": "image/jpeg"
            },
            {
                "id": "11",
                "documentType": "technicalSpecifications",
                "description": "proposed site plan dwg. 200",
                "url": "https://www.contractsfinder.service.gov.uk/Notice/Attachment/6e1fd048-c530-41f2-8608-ef34bb288089",
                "format": "image/jpeg"
            },
            {
                "id": "12",
                "documentType": "technicalSpecifications",
                "description": "proposed ground floor plan dwg. 201",
                "url": "https://www.contractsfinder.service.gov.uk/Notice/Attachment/3eb80e51-a8e2-4cb6-9ed6-132a0ae6ab5e",
                "format": "image/jpeg"
            },
            {
                "id": "13",
                "documentType": "technicalSpecifications",
                "description": "proposed roof plan dwg. 202",
                "url": "https://www.contractsfinder.service.gov.uk/Notice/Attachment/2f7c197d-ccde-4a03-af9b-c4378edb4f16",
                "format": "image/jpeg"
            },
            {
                "id": "14",
                "documentType": "technicalSpecifications",
                "description": "proposed elevations 1 of 3 dwg. 203",
                "url": "https://www.contractsfinder.service.gov.uk/Notice/Attachment/e6b18aa9-aad0-4e4b-91d3-45b000ef74e6",
                "format": "image/jpeg"
            },
            {
                "id": "15",
                "documentType": "technicalSpecifications",
                "description": "proposed elevations 2 of 3 dwg. 204",
                "url": "https://www.contractsfinder.service.gov.uk/Notice/Attachment/dda36d4e-53a7-4624-b7c0-6bbbd9d52b7a",
                "format": "image/jpeg"
            },
            {
                "id": "16",
                "documentType": "technicalSpecifications",
                "description": "proposed elevations 3 of 3 dwg. 205",
                "url": "https://www.contractsfinder.service.gov.uk/Notice/Attachment/fc2ded33-641f-4437-b003-7cc98c7ffb2d",
                "format": "image/jpeg"
            },
            {
                "id": "17",
                "documentType": "technicalSpecifications",
                "description": "proposed sections dwg. 206",
                "url": "https://www.contractsfinder.service.gov.uk/Notice/Attachment/054a1117-a560-46e4-9a71-ff4a71ef32a1",
                "format": "image/jpeg"
            },
            {
                "id": "18",
                "documentType": "technicalSpecifications",
                "description": "construction details dwg. 300",
                "url": "https://www.contractsfinder.service.gov.uk/Notice/Attachment/1059c5da-ba48-4a6d-a69e-d5c2dea0ec31",
                "format": "image/jpeg"
            }
        ]
    },
    "parties": [
        {
            "id": "GB-SRS-sid4gov.cabinetoffice.gov.uk/82Aa2WfS",
            "name": "Market Lavington Parish Council",
            "identifier": {
                "legalName": "Market Lavington Parish Council",
                "scheme": "GB-SRS",
                "id": "sid4gov.cabinetoffice.gov.uk/82Aa2WfS"
            },
            "address": {
                "streetAddress": "20 The Glebe,",
                "locality": "All Cannings",
                "postalCode": "SN10 3NW",
                "countryName": "England"
            },
            "contactPoint": {
                "name": "Andrew Simpson",
                "email": "andrew@canningsestates.co.uk"
            },
            "roles": [
                "buyer"
            ]
        }
    ],
    "buyer": {
        "id": "GB-SRS-sid4gov.cabinetoffice.gov.uk/82Aa2WfS",
        "name": "Market Lavington Parish Council"
    }
}